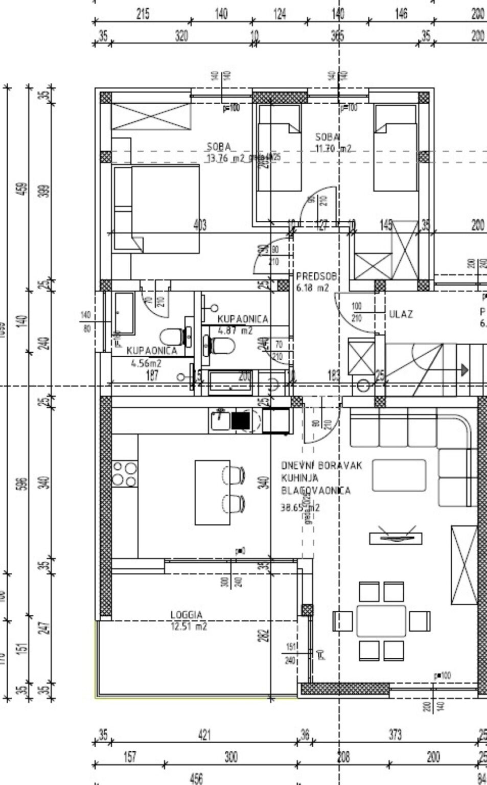
A modern apartment in Pakostane with a total area of 91.60 m² is located on the first floor of a new residential building scheduled for completion in 2026. The living space covers 89.10 m², and the peaceful location adds exceptional value to this property. The layout includes an entrance hall, one bedroom, an additional bedroom with its own bathroom, a separate bathroom, and a spacious kitchen connected to the dining area and living room, which opens onto a loggia. The apartment also comes with a private parking space, and no real estate transfer tax is applied upon purchase.
The building is constructed with brick thermo-blocks and insulated façade. The windows are PVC with triple glazing, electric shutters, and insect screens. Floors are a combination of tiles and parquet, and the entrance doors are security and fire-resistant. The entire apartment is equipped with electric underfloor heating, while three air-conditioning units—placed in the living room and bedrooms—ensure maximum comfort. The property is connected to the sewage system, features a chimney, and has a flat concrete roof. The expected energy certificate is class A, highlighting both quality and efficiency.
Pakostane is a charming Dalmatian seaside resort on the Adriatic coast, uniquely located between the sea and Lake Vrana. It offers all the necessary amenities for everyday life—shops, school, pharmacy, doctor, and post office—while also being an ideal destination for holidays or permanent living. The surroundings boast beautiful nature, with four national parks (Kornati, Krka, Paklenica, and Plitvice Lakes) and two nature parks (Telašćica and Lake Vrana) nearby, adding to the attractiveness of the location.
Check out the latest market insights and property tips in the Blog section.







